2 Monate mietfrei! Funktionale Büroeinheit in gefragter Lage
-
Diese repräsentative Bürofläche befindet sich in einem denkmalgeschützten Gebäude, welches im Jahr 1900 erbaut wurde. Das Gebäude wurde vollständig renoviert und verfügt über insgesamt 5 Zimmer. Es ist barrierefrei zugänglich und bietet zudem 3 Parkplätze direkt vor dem Eingang.
Die Räumlichkeiten zeichnen sich durch ihre großzügige Aufteilung aus. Die Zentralheizung sorgt für angenehme Wärme, während die hohen Decken und großen Fenster für eine helle und freundliche Arbeitsatmosphäre sorgen. Die Bürofläche bietet ausreichend Platz für individuelle Gestaltungsmöglichkeiten und ist ideal für Unternehmen, die nach einem repräsentativen Arbeitsumfeld suchen.
Zusätzlich verfügt die Immobilie über eine moderne Küche und ein zeitgemäßes Badezimmer. Die zentrale Lage ermöglicht eine gute Erreichbarkeit für Mitarbeiter und Kunden. Dank der umfangreichen Renovierung präsentiert sich die Bürofläche in einem erstklassigen Zustand und bietet eine einzigartige Kombination aus Historie und Modernität. -
Flächen
- Bürofläche: 189 m²
- Zimmer insgesamt: 5
- Separate WCs: 2
- Stellplätze: 3
- Stellplatzart: Freiplatz
- Außenstellplätze:
Zustand & Erschließung
- Baujahr: 1900
- Zustand: vollsaniert
Sonstiges
- Immobilie ist verfügbar ab: sofort
- Denkmalschutz: ja
-
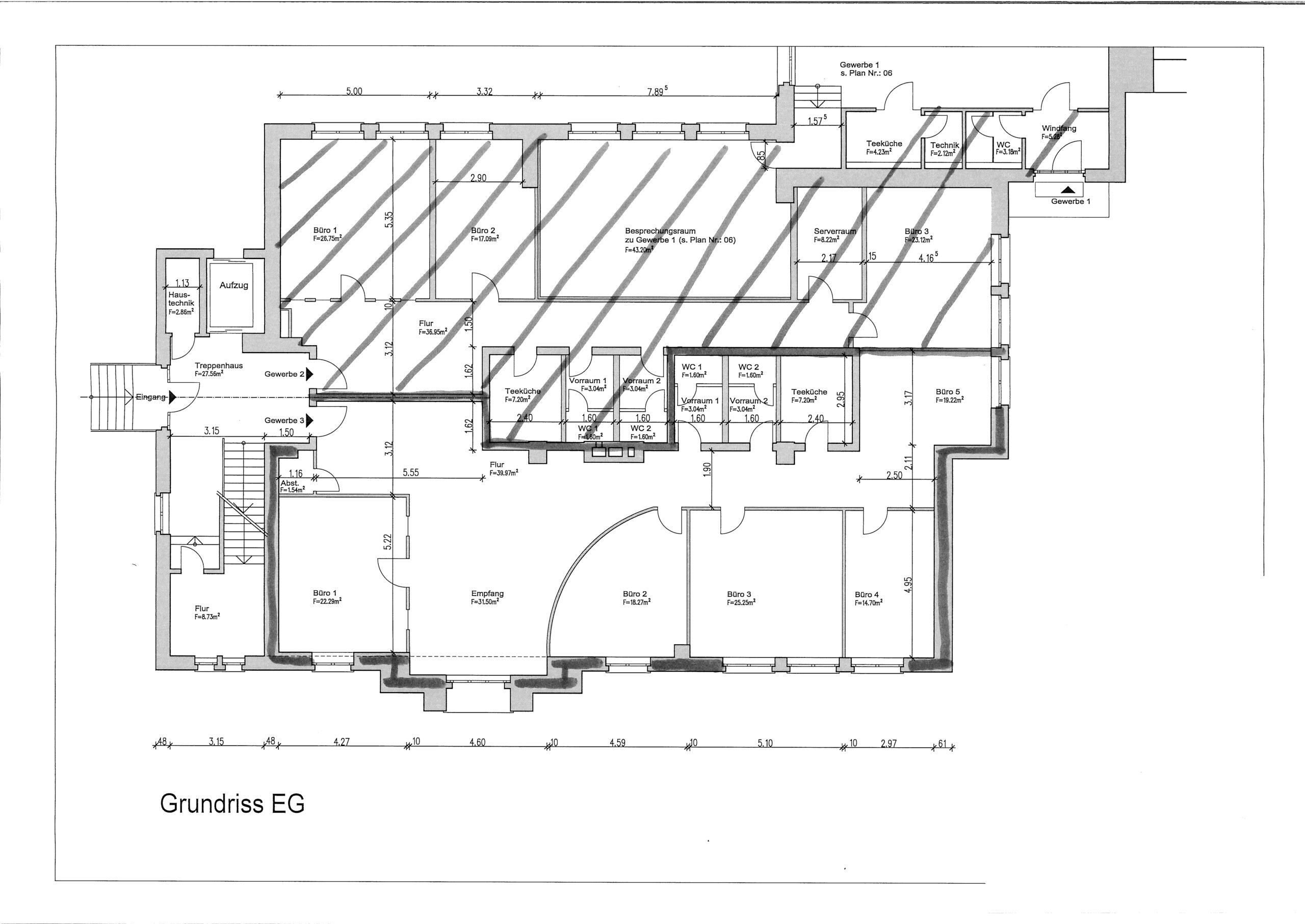
Die Bürofläche befindet sich im Erdgeschoss des repräsentativen Brandstetter Hauses und vereint historische Architektur mit modernem Komfort. Der großzügige Eingangs- und Empfangsbereich schafft bereits beim Betreten einen professionellen Eindruck und bietet Raum für eine repräsentative Gestaltung.
Insgesamt fünf Büroräume ermöglichen eine flexible Nutzung – vom klassischen Einzel- oder Doppelbüro bis hin zu offenen Arbeitsbereichen oder Besprechungszimmern. Große Fenster und hohe Decken sorgen für eine helle, freundliche Atmosphäre und ein angenehmes Arbeitsumfeld.
Die Fläche ist mit einem hochwertigen, antistatischen Teppichboden ausgestattet, der optimal auf die Anforderungen moderner Büronutzung ausgelegt ist. Zwei separate Sanitäranlagen sowie eine praktische Einbauküche stehen ebenfalls zur Verfügung.
Für zusätzlichen Komfort verfügt die Einheit über drei direkt am Haus gelegene Außenstellplätze. Ein separater Kellerraum bietet zusätzlichen Stauraum.
Dank der umfassenden Renovierung befindet sich die Fläche in einem erstklassigen Zustand und ist sofort bezugsfertig – eine ideale Adresse für Unternehmen, die Wert auf eine repräsentative Umgebung, funktionale Ausstattung und ein stilvolles Ambiente legen.
- Heizungsart: Zentralheizung
- Befeuerung: Gas
- Bodenbelag: Teppich
- Küche: Einbauküche
-
DV-Verkabelung
-
Personenaufzug
-
- Primärenergieträger: Gas
- Baujahr (Energieausweis): 1900
- Energieausweis-Jahrgang: nicht benötigt
- Energieausweis-Gebäudeart: Nichtwohngebäude
-
Die Bürofläche befindet sich in einer der attraktivsten Innenstadtlagen Wiesbadens, nur wenige Schritte vom beliebten Nerotal entfernt. Das grüne Umfeld mit seinen Parkanlagen schafft eine angenehme Balance zwischen urbanem Arbeiten und hoher Aufenthaltsqualität. Mitarbeiter und Kunden profitieren hier gleichermaßen von kurzen Wegen ins Zentrum sowie von der direkten Nähe zu einem der schönsten Naherholungsgebiete der Stadt.
Die Mikrolage zeichnet sich durch eine ausgezeichnete Infrastruktur aus: In unmittelbarer Umgebung liegen zahlreiche Restaurants, Cafés und Geschäfte, die für eine lebendige und vielseitige Arbeitsatmosphäre sorgen. Zudem sind Banken, Kanzleien und Behörden fußläufig erreichbar – ein starkes Plus für Geschäftsbeziehungen und Kooperationen.
Verkehrstechnisch ist der Standort ebenfalls hervorragend angebunden. Mehrere Buslinien stellen eine direkte Anbindung an zentrale Knotenpunkte der Stadt sicher. Über die nahegelegenen Autobahnen A66 und A643 sind Mainz, Frankfurt und der Flughafen Frankfurt in kurzer Zeit erreichbar.Wiesbaden als Landeshauptstadt bietet darüber hinaus ein stabiles wirtschaftliches Umfeld, geprägt von internationalen Konzernen, einem wachsenden Dienstleistungssektor und einer hohen Lebensqualität. Die Kombination aus zentraler, urbaner Lage, der grünen Oase des Nerotals und der starken Einbindung in das Rhein-Main-Gebiet macht diesen Standort zu einer erstklassigen Adresse für Unternehmen.
-
- Kaltmiete: 1.950 €
- monatl. Betriebs-/Nebenkosten: 700 €
- Warmmiete: 2.650 €
- Kaution: 5.850€
- Käuferprovision: 4.380€
- Außenstellplatzmiete:












