Charmantes Familienidyll in zentraler Lage - freistehendes EFH auf knapp 1.700 qm Grundstück
-
Hausansicht -
Hauseingang -
Straßenansicht -
Hausansicht Garten -
Garten -
Terrassenbereich -
Wohnzimmer -
Wohnzimmer -
EG - Bad 1 (Dusche) -
EG - Bad 1 (Dusche) -
EG - Schlafzimmer 1 -
EG - Schlafzimmer 2 -
Einbauküche -
Blick von der Küche in den Garten -
Treppe -
1. OG Flur -
1.OG - Schlafzimmer 3 -
1. OG - Schlafzimmer 4 -
1. OG - Schlafzimmer 5 -
1. OG - Bad 2 (Dusche) -
1. OG - Bad 2 (Dusche) -
1. OG - Schlafzimmer 6 mit Bad en suite -
1. OG - Bad 3 (Dusche und Badewanne) -
Blick vom Balkon zur Straße -
Blick vom Balkon in den Garten -
Seitenansicht mit Stellplätzen -
Garage mit Stellplatz -
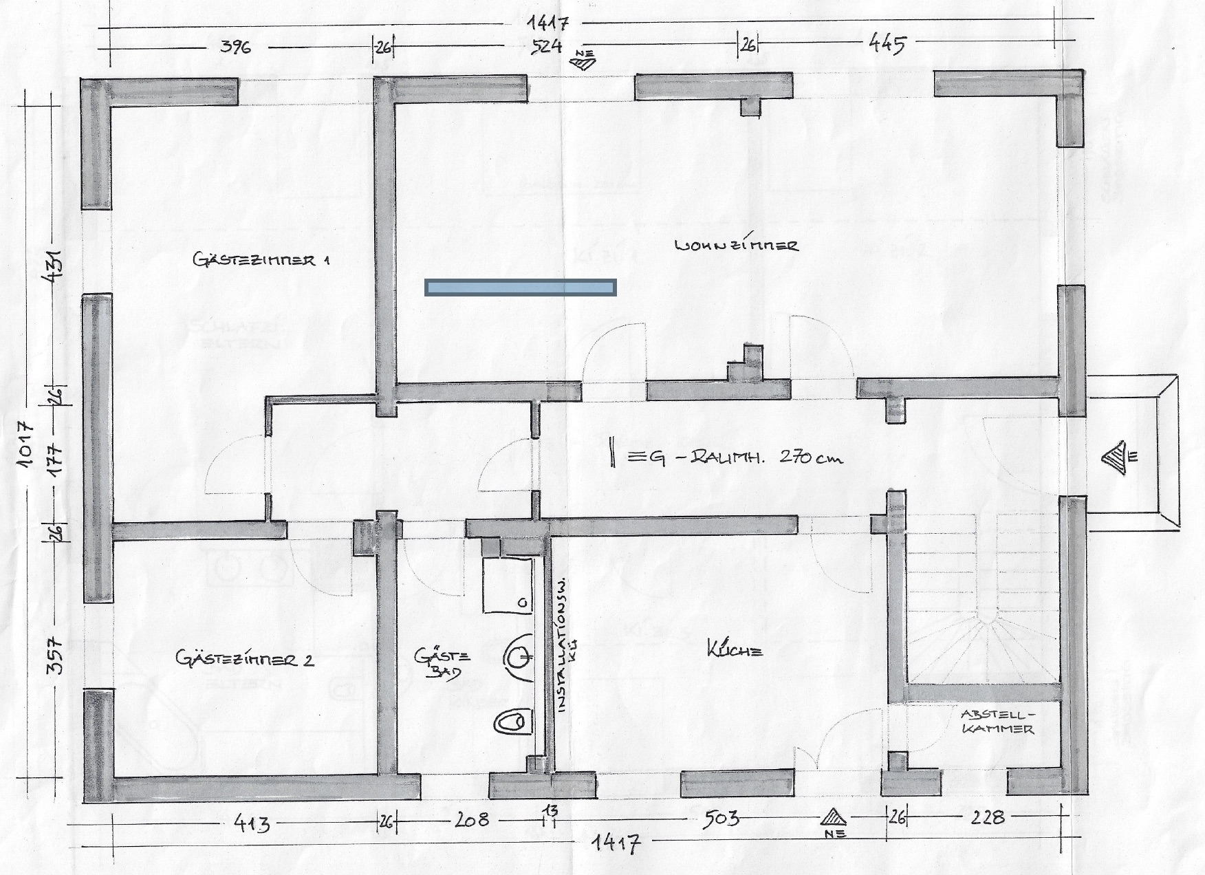
Grundriss Erdgeschoss -
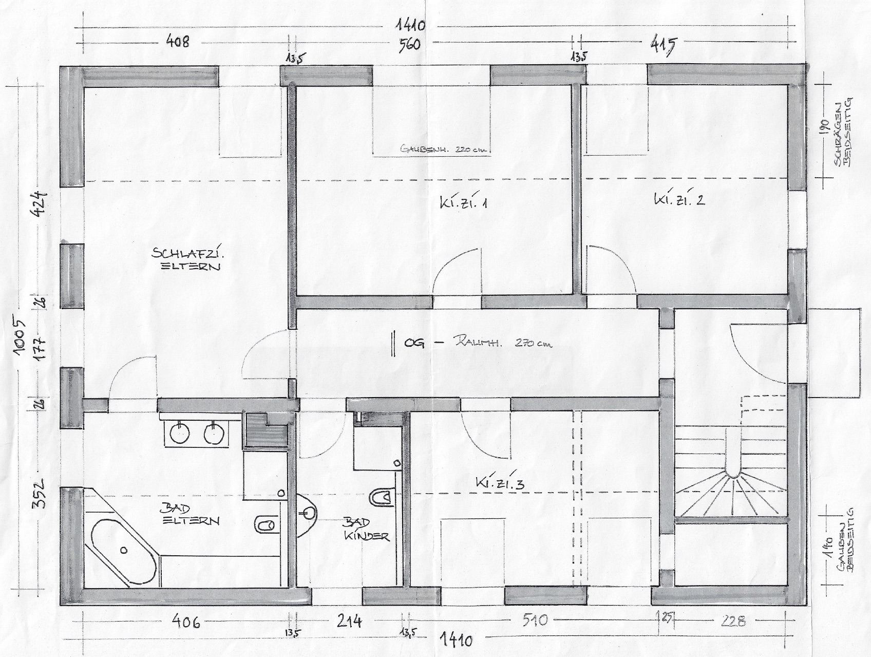
Grundriss 1. OG
-
Dieses 1947 erbaute und 2005 sanierte Einfamilienhaus besticht durch seine harmonische Kombination aus Tradition und zeitgemäßer Eleganz.
Das Haus erstreckt sich über eine großzügige Wohnfläche von ca. 243 m² und bietet ausreichend Platz für die ganze Familie. Mit insgesamt sieben Zimmern, darunter sechs Schlafzimmer und drei stilvoll gestaltete Badezimmer, erfüllt diese Immobilie alle Ansprüche an komfortables Wohnen. Jedes Detail wurde sorgfältig durchdacht, um ein angenehmes Wohngefühl zu schaffen.
Das etwa 1.684 m² große Grundstück lädt mit seinen weitläufigen Grünflächen zum Entspannen und Genießen der Natur ein. Eine großzügige Terrasse und ein Balkon bieten zusätzliche Möglichkeiten, die Sonne zu genießen oder gesellige Stunden im Freien zu verbringen.
Die Nutzfläche von rund 100 m² im geräumigen Keller eröffnet vielseitige Möglichkeiten zur individuellen Gestaltung. Ob Hobbyraum, Werkstatt oder zusätzlicher Stauraum – hier sind Ihren Ideen keine Grenzen gesetzt.
Genießen Sie die Vorzüge eines gepflegten und modernen Hauses in einer der begehrtesten Wohnlagen Wiesbadens. Eine perfekte Kombination aus Ruhe, Naturverbundenheit und urbanem Lifestyle erwartet Sie. Zögern Sie nicht, dieses einzigartige Immobilien-Angebot näher kennenzulernen und vereinbaren Sie noch heute einen Besichtigungstermin. Dieses traumhafte Zuhause könnte schon bald Ihnen gehören! -
Flächen
- Wohnfläche: 243,14 m²
- Grundstücksfläche: 1.684 m²
- Nutzfläche: 100 m²
- Zimmer insgesamt: 7
- Schlafzimmer: 6
- Badezimmer: 3
- Etagen: 3
- Stellplätze: 5
- Außenstellplätze:
- Garagenstellplätze:
- Balkone: 1
- Terrassen: 1
Zustand & Erschließung
- Baujahr: 1947
- Zustand: saniert
- Keller: voll unterkellert
Sonstiges
- Immobilie ist verfügbar ab: bezugsbereit
-
– sehr guter Grundrisszuschnitt ideal für eine große Familie
– zwei großzügige Terrassen und ein zusätzlicher Balkon für entspannte Stunden im Freien
– geräumiger Keller mit vier großen Räumen und einer Waschküche bieten viel Stauraum2005 saniert u.a.:
– neue Einbauküche
– alle Badezimmer erneuert
– teilweise Fenster und Türen erneuert
– Parkettböden aufgearbeitet
– effiziente Gas-Zentralheizung- Heizungsart: Zentralheizung
- Befeuerung: Gas
-
Kamin
-
- Energieausweis-Art: Verbrauch
- Energieausweis gültig bis: 29.08.2026
- Energieverbrauchskennwert: 96,00 kWh/(m²*a)
- Primärenergieträger: ERDGas_LEICHT
- Energieeffizienzklasse: C
- Baujahr (Energieausweis): 1947
- Energieausweis-Jahrgang: ab Mai 2014
- Energieausweis-Gebäudeart: Wohngebäude
-
Dieses charmante Einfamilienhaus befindet sich in einer der begehrtesten Gegenden von Wiesbaden., dem Dichterviertel.
In unmittelbarer Umgebung finden Sie eine hervorragende Auswahl an Einkaufsmöglichkeiten, Cafés und Restaurants, die für eine kulinarische Vielfalt sorgen. Auch ein umfangreiches Angebot an Schulen und Kindergärten ist in der Nähe verstreut, was die Lage besonders für Familien mit Kindern attraktiv macht.
Die Verkehrsanbindung ist optimal gestaltet, sodass Sie das Stadtzentrum von Wiesbaden sowie umliegende Städte schnell und unkompliziert erreichen. Öffentliche Verkehrsmittel sind ebenso gut zugänglich, wie die nahegelegene Autobahn, die Sie in kurzer Zeit ins Umland bringt. Der Wiesbadener Hauptbahnhof sowie das Einkaufszentrum Liliencarrée mit zahlreichen Einkaufsmöglichkeiten, Fitnessstudio, Apotheke und Supermarkt sind fußläufig erreichbar.
Zusätzlich ermöglicht die Nähe zu diversen Parks und Grünflächen eine Vielzahl von Freizeitaktivitäten im Freien. Ob Sie gerne spazieren gehen, Rad fahren oder einfach nur die Natur genießen – hier finden Sie entsprechende Möglichkeiten ganz in Ihrer Nähe.
Insgesamt bietet diese Lage eine harmonische Mischung aus städtischem Leben und naturnaher Ruhe, was sie zu einem perfekten Standort für Ihr neues Zuhause macht.
-
- Kaufpreis: 2.500.000 €
- Kaufpreis pro m²: 10.282,14 €
- Käuferprovision: 3,57% inkl. der gesetzlichen MwSt.
- Außenstellplatzkaufpreis:
- Stellplatzkaufpreis (Garage):





























