Gut vermietetes Apartment in der Rheingauresidenz
-
Hier hat ein solider Bauträger mit viel Weitblick eine Seniorenresidenz erschaffen, die es den Menschen leicht macht, das alte Zuhause zu verlassen. Verschied große Wohnungen, helle, freundliche Flure, große Aufzüge, ein Café und ein Pflegedienst im Haus bieten rundum den gewünschten Komfort. Das Konzept ist gut durchdacht: soviel Selbstständigkeit wie möglich, soviel Unterstützung wie nötig!
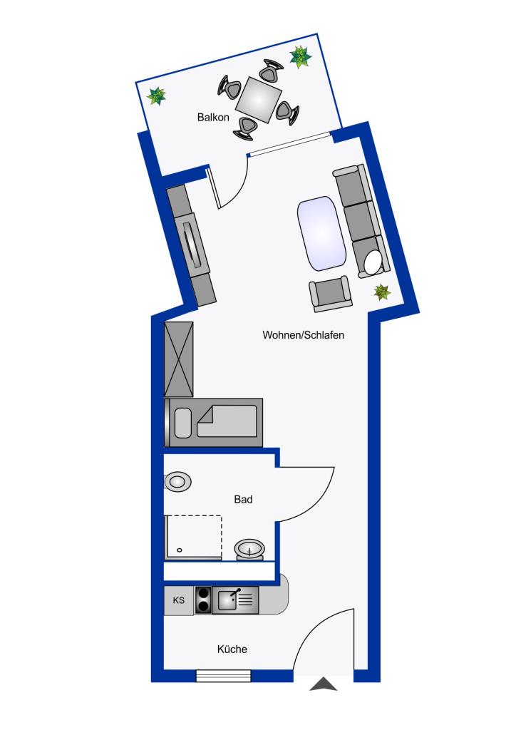
Im 2. Obergeschoss befindet sich die kleine Wohnung mit geschicktem Grundriss: kleine Küche, Bad und ein Wohn-Schlafraum mit Balkon auf dem man die Abenddämmerung über dem Rhein genießen kann.
Ein Parkplatz steht zur Verfügung.
Die Wohnung ist gut vermietet und kann als Kapitalanlage oder zum späteren Einzug selbst genutzt werden. -
Flächen
- Wohnfläche: 35,11 m²
- Zimmer insgesamt: 1
Zustand & Erschließung
- Baujahr: 2000
- Erschließung: vollerschlossen
Sonstiges
Seniorenresidenz mit Pflegedienst im Haus. -
– 1-Zimmer-Apartment mit Küche
– 35,11 m² Wohnfläche
– 2. Stock mit Aufzug
– Sonnenbalkon mit Blick
– großes Bad mit bodengleicher Dusche
– barrierefreie Ausstattung
– Gemeinschaftsräume
– Pflegedienst im Haus
– Jahrenettomiete EUR 5.160,00
– Wohngeld EUR 356,00 (nicht umlagefähig EUR 100,–)
– eigener Stellplatz
– Energie: V, 143,4 kWh/m², E, Fernwärme- Befeuerung: Fernwärme
-
Personenaufzug
-
- Energieausweis-Art: Verbrauch
- Energieausweis gültig bis: 10.02.2029
- Energieverbrauchskennwert: 143,40 kWh/(m²*a)
- Warmwasser im Energieverbrauch enthalten: ja
- Primärenergieträger: Fernwärme
- Energieeffizienzklasse: E
-
Die „Rheingauresidenz“ in Geisenheim liegt inmitten der Rheingauer Kulturlandschaft, und doch unweit des Rhein–Main-Wirtschaftsgebiets, mit kurzen Wegen nach Wiesbaden, Mainz und in die Region Frankfurt.
Alle Besorgungen und Annehmlichkeiten des täglichen Lebens sind zu Fuß erreichbar. Spazieren Sie entlang des Rheins oder durch die Weinberge. Auch mit öffentlichen Verkehrsmitteln sind Sie von Geisenheim ideal an das Rhein- Main Gebiet angebunden. -
- Kaufpreis: 98.000 €
- Preise zuzüglich Mehrwertsteuer: nein
- Käuferprovision: provisionsfrei
- Hinweise zu den Preisen: 98.000,00










