Wohnen in allerbester Lage von Wiesbaden!
-
Hier wohnen Sie in allerbester Lage von Wiesbaden: in 15 Minuten zu Fuß in den Kurpark oder ins Theater!
Der Bungalow aus den sechziger Jahren besticht mit einer sehr gelungenen Raumkonzeption, die Platz auch für eine größere Familie bietet. Ein wunderschönes Wohnzimmer mit angrenzender Loggia, viele Schlafzimmer und drei Bäder, Arbeitszimmer, Wohnküche und ein traumhafter Garten versprechen Wohnglück für Ihre Familiel.
Das Haus benötigt eine Sanierung. Auf dem Grundstück ist auch ein Neubau denkbar. -
Flächen
- Wohnfläche: 192 m²
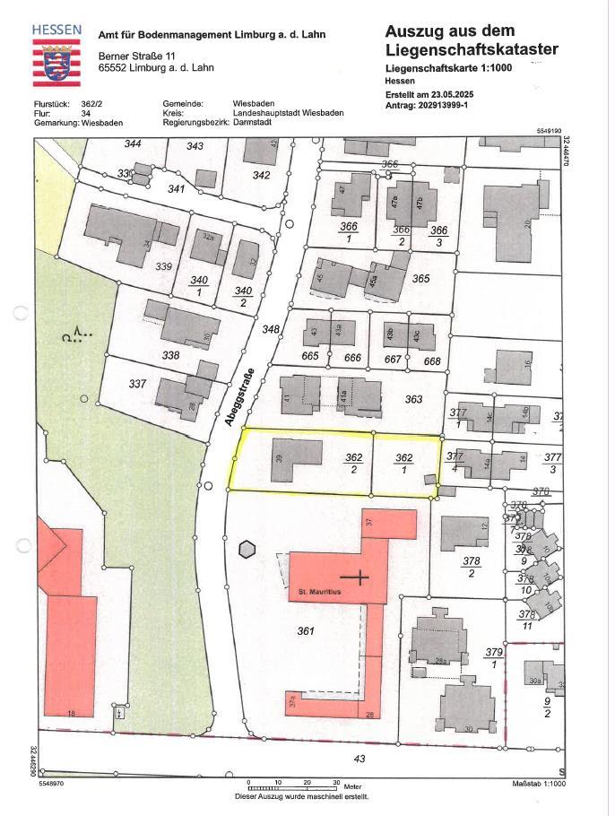
- Grundstücksfläche: 1.504 m²
- Zimmer insgesamt: 8
- Stellplatzart: Garage
Zustand & Erschließung
- Baujahr: 1961
Sonstiges
Der hintere Teil des Grundstücks bleibt gemäß Bebauungsplan als Gartenland erhalten, im vorderen Teil können zwei Gebäude mit entweder sechs Eigentumswohnungen oder vier Doppelhaushälften errichtet werden.
Das Haus liegt in Nachbarschaft zur Mauritiuskirche, diese hat allerdings keine Glocke, so dass Sie sehr ruhige Nachbarn haben. -
– Baujahr 1961
– Grundstückgröße 1.504 m²
– schön eingewachsen mit Gartenhaus
– Wohnfläche ca. 192 m²
– Wohnzimmer
– 5-7 Zimmer
– 3 Bäder
– Küche mit Essplatz
– Renovierung erforderlich
– Gas-Zentralheizung 1995
– Energieausweis in Vorbereitung
– 2 Garagen mit elektrisch betriebenem Tor -
In Wiesbaden lebt es sich „etwas höher“ sehr angenehm: gute Luft, absolute Ruhe, viel Grün, freundliche Nachbarn. Nur wenige Schritte vom wohl bekanntesten Wohngebiet Wiesbadens, dem „Komponistenviertel“ und Sie sind an der Taunusstraße und dem „Kureck“.
Kurz, das Wiesbadener „Komponistenviertel“ zählt zu den allerbesten Wohnlagen der Stadt. Ihre Kinder besuchen die beliebte Schumann-Grundschule, Sie kaufen beim nahen Tegut ein oder laufen einfach mal in die Stadt. Theater, Kurhaus und Kurpark sind nur ein paar Geh-Minuten entfernt.
Wald, Opelbad und der Kurpark sind „um die Ecke“. Beste Wohnqualität mit hohem Freizeitwert in absoluter Ruhe mitten im Grünen! -
- Kaufpreis: 1.455.000 €
- Preise zuzüglich Mehrwertsteuer: nein
- Käuferprovision: provisionsfrei
- Hinweise zu den Preisen: 1.455.000,00








