Solides 5-Familienhaus in Igstadt!
-
Ein 5-Familienhaus mit einer großen, freigestellten Wohnung mit herrlichem Garten, Terrasse und Balkon! Dazu 4 gut vermietete Wohnungen in einer angenehmen Hausgemeinschaft!
Das ursprünglich in den 1960er Jahren erbaute Haus wurde 1985 modernisiert und um zwei Wohnungen erweitert. Mit 382 m² vermietbarer Fläche, dazu Garage, Carport und Stellplätzen wird hier eine Jahresnettomiete von über EUR 56.000,– erzielt.
Da die große Wohnung jetzt frei wird, können Sie hier einziehen, sich wie im eigenen Haus fühlen und sich über die zusätzlichen Mieteinnahmen freuen.
In den letzten Jahren ist immer investiert worden, insbesondere wurde 2021 eine neue Gaszentraheizung eingebaut. -
Flächen
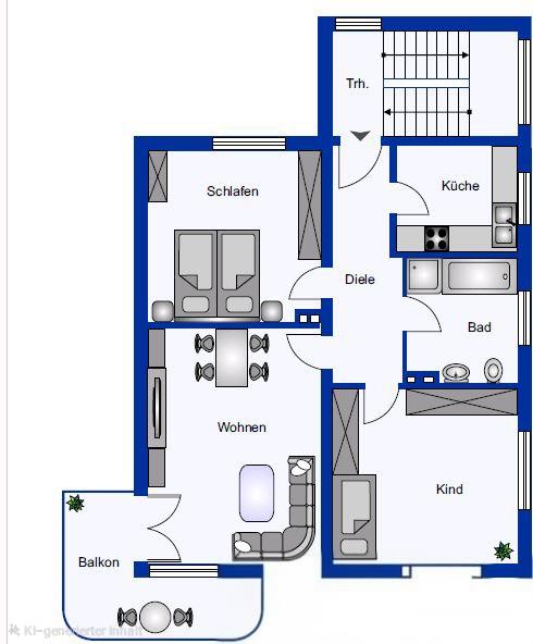
- Wohnfläche: 382 m²
- Grundstücksfläche: 685 m²
- Zimmer insgesamt: 14
Zustand & Erschließung
- Baujahr: 1985
- Erschließung: vollerschlossen
Sonstiges
Die große Maisonette-Wohnung kann selbst bezogen werden. -
– schöne Wohnungen mit guter Ausstattung
– Einbauküche, Kamin, modernes Badezimmer
– 4 Wohnungen gut vermietet, 1 Wohnung wird frei
– 382 m² vermietbare Wohnfläche
– 685 m² Grundstück mit herrlichem Garten
– toller Fernblick
– Garage, Carport, Stellplätze
– voll unterkellert
– Gaszentralheizung aus 2021
– Energieausweis in Vorbereitung
– Jahresnettomiete EUR 56.820,– -
Viele umliegende Ortschaften wurden im Laufe der Jahre in Wiesbaden eingemeindet: auch dem hübschen, kleinen Ort Igstadt ist es nicht anders ergangen, doch haben es die Bürger hier geschafft, sich ein großes Stück Eigenleben zu erhalten. insbesondere die sehr beliebte Grundschule im Ort zieht immer mehr Familien hierher. Ein aktives Gemeindeleben, gute Luft, von Wiesen und Feldern umgeben finden Sie hier noch ein Stück heile Welt. Außer der sehr guten Anbindung zur Autobahn hat Igstadt tatsächlich einen Bahnhof, die „Ländchesbahn“ verbindet Wiesbaden mit Niedernhausen, von dort kommen Sie in alle Richtungen weiter. Alle, wirklich alle, Einkaufsmöglichkeiten finden Sie im benachbarten Bierstadt.
-
- Kaufpreis: 1.355.000 €
- Preise zuzüglich Mehrwertsteuer: nein
- Käuferprovision: provisionsfrei
- Hinweise zu den Preisen: 1.355.000,00















