The Rheingau at its best
-
Diese projektierte Doppelhaushälfte verbindet modernes Wohnen mit einem traumhaften Blick ins Grüne bis zum Rhein. In ruhiger Lage und mit unverbaubarem Fernblick entsteht ein Zuhause, dessen Baustart bereits erfolgt ist.
Die familienfreundliche Raumaufteilung überzeugt auf ganzer Linie: Im Erdgeschoss erwartet Sie ein großzügiger Wohn- und Essbereich mit großen Fensterflächen und direktem Zugang zu Terrasse und Garten. Eine offene Küche, ein Gäste-WC sowie ein Hauswirtschaftsraum ergänzen das Angebot.
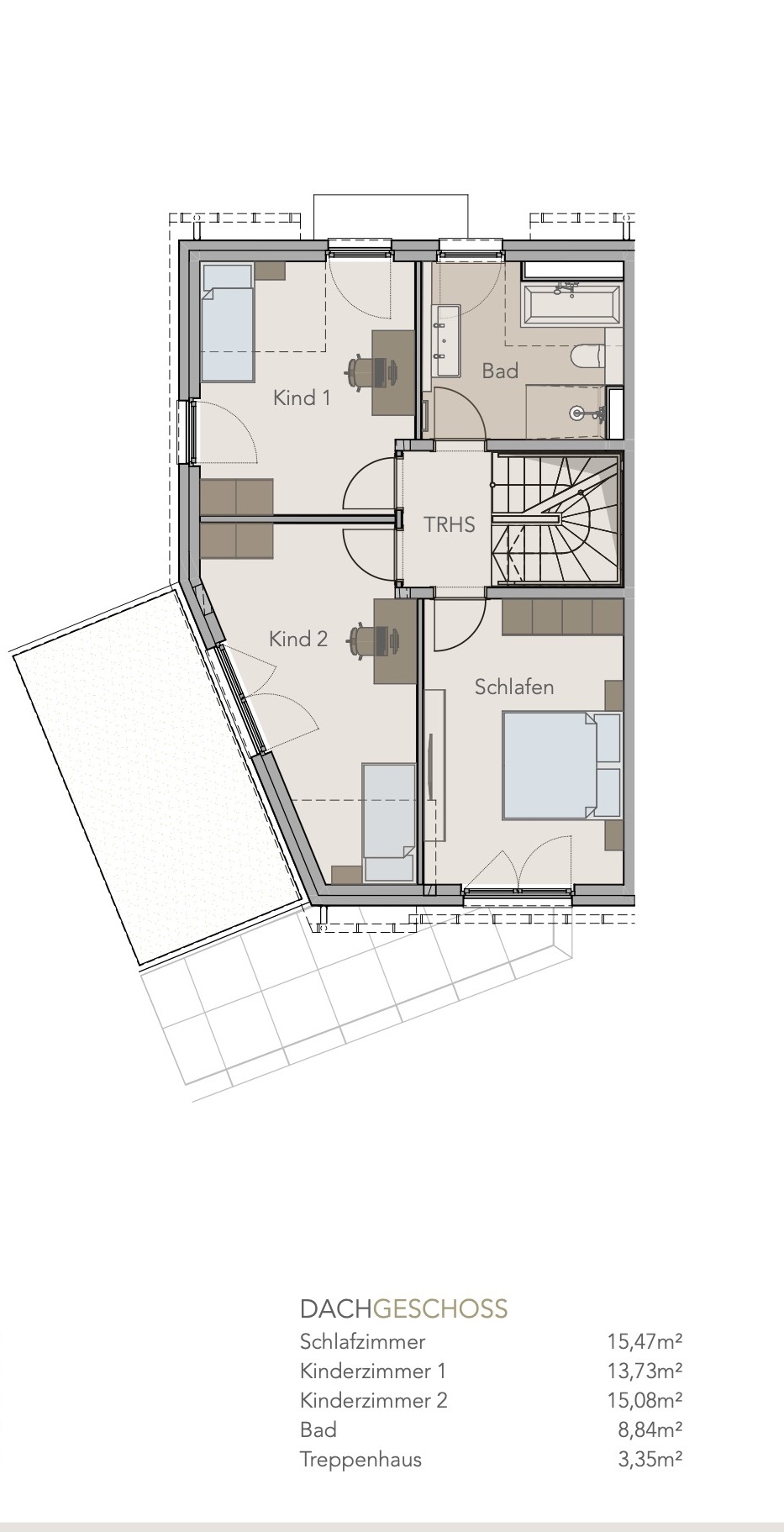
Im Obergeschoss befinden sich drei helle Schlafzimmer – Eltern- und zwei Kinderzimmer – sowie ein modernes Familienbad. Die Eckverglasung sorgt für ein offenes und freundliches Ambiente.
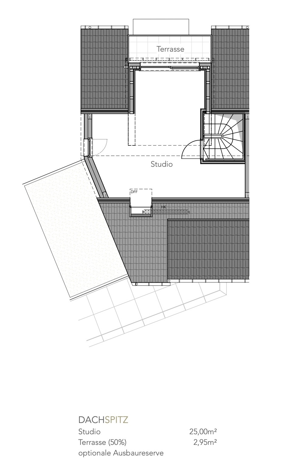
Der Dachspitz bietet mit ca. 26 m² Ausbaupotenzial zusätzlichen Wohnraum, ideal als Studio, Homeoffice oder weiterer Schlafbereich. Eine Loggia schafft zusätzlichen Freiraum mit Ausblick.
Das Haus wird schlüsselfertig übergeben. Ein Carport und ein Stellplatz kann dazu gehören. Zudem bestehen attraktive Finanzierungsmöglichkeiten über eine lokale Bank.
Ein Zuhause, das Lebensqualität, Komfort und einen begeisternden Ausblick vereint.
Weitere Informationen gibt es hier: https://www.rheinleben.net -
Flächen
- Wohnfläche: 152 m²
- Grundstücksfläche: 175 m²
- Zimmer insgesamt: 5
- Schlafzimmer: 4
- Badezimmer: 1
- Separate WCs: 1
- Stellplätze: 1
- Carport-Stellplätze:
- Balkone: 1
- Terrassen: 1
Zustand & Erschließung
- Baujahr: 2026
- Zustand: projektiert
Sonstiges
Alle in diesem Angebot enthaltenen Angaben, Abmessungen und Preisangaben beruhen auf Angaben des Verkäufers (oder eines Dritten). Heske Volz & Cie GbR kann für die Richtigkeit und Vollständigkeit keine Gewähr übernehmen. -
Das durchdachte Bauvorhaben umfasst fünf hochwertige Wohneinheiten: drei Reihenhäuser und ein Doppelhaus, die sich harmonisch um einen zentralen Platz gruppieren. Die Anordnung fördert kurze Wege, ein angenehmes Miteinander und ein stimmiges Gesamtbild der Anlage.
Erfahrene Architekten und Ingenieure haben ein klares, funktionales und zugleich ästhetisches Wohnkonzept entwickelt, das moderne Wohnansprüche mit zeitloser Gestaltung verbindet. Hier entsteht ein Ensemble, das Wert auf Qualität und durchdachte Details legt.
Besonders attraktiv ist die Einbindung in gewachsenen Altbestand: Statt anonymer Neubaugebiete entsteht ein Wohnort mit Charakter, Geschichte und Charme. Die privaten Gärten grenzen direkt an den idyllischen Schwemmbach und sorgen so für ein naturnahes Wohngefühl.
Natürliche Materialien und eine warme, harmonische Farbgestaltung prägen das einladende Ambiente. Jede Wohneinheit verfügt über eine eigene Terrasse sowie einen privaten Garten – perfekt für entspannte Stunden im Freien oder geselliges Beisammensein.
Auch in Sachen Nachhaltigkeit setzt das Projekt Maßstäbe: Die energieeffiziente Bauweise entspricht modernen Standards, senkt langfristig Betriebskosten und sorgt für ein zukunftsfähiges Wohnkonzept.- Heizungsart: Fußbodenheizung
- Befeuerung: Luft-Wärmepumpe
-
Kabel/Sat-TV
-
- Primärenergieträger: Luft-Wärmepumpe
-
Der Stadtteil Winkel, als Teil der beliebten Rheingaugemeinde Oestrich-Winkel, bietet die perfekte Mischung aus naturnahem Wohnen und städtischer Infrastruktur. Inmitten von Weinbergen und mit direkter Nähe zum Rhein genießen Sie hier eine hohe Lebensqualität, die sowohl Familien als auch Paare begeistert.
Die Lage ist besonders familienfreundlich: In Oestrich-Winkel selbst befinden sich mehrere Kindergärten sowie eine Grundschule – weiterführende Schulen sind in den benachbarten Ortsteilen oder Städten schnell und unkompliziert erreichbar. Auch Betreuungs- und Freizeitangebote für Kinder sind vielfältig vorhanden.
Die medizinische Versorgung ist durch eine gute Auswahl an Haus- und Fachärzten sowie Apotheken im Ort gesichert. Für den täglichen Bedarf stehen Supermärkte, Bäcker und weitere Geschäfte des täglichen Lebens fußläufig zur Verfügung. Regionale Produkte gibt es frisch auf dem Wochenmarkt oder direkt in den zahlreichen Hofläden.
Freizeit und Kultur kommen in Oestrich nicht zu kurz: Ob Spaziergänge entlang des Rheins, Radtouren durch die Weinberge, Besuche in traditionellen Weingütern mit Gutsausschank oder gemütliche Abende in der Gastronomie vor Ort – hier lässt sich das Leben genießen. Kino, Sportvereine und kulturelle Veranstaltungen sorgen für zusätzliche Abwechslung.
Dank der zentralen Lage ist Oestrich hervorragend angebunden: Mit dem Bahnhof und mehreren Busverbindungen sind Städte wie Wiesbaden, Mainz oder Frankfurt schnell erreicht. Auch die A66 ist in wenigen Minuten mit dem Auto erreichbar – ideal für Pendler.
Oestrich bietet Ihnen ein Zuhause mit Charakter, Ruhe, guter Infrastruktur und einem hohen Maß an Lebensqualität – mitten im Rheingau. -
- Kaufpreis: 849.000 €
- Käuferprovision: 2,38%
- Stellplatzkaufpreis (Carport):








